
4
дома в жк4
этажа в доме273
квартирыО комплексе
ЖК «Курортный» - это комплекс комфорт класса состоящий из 4-х стильных четырёхэтажных домов с комфортными лифтами и уютными зонами отдыха во дворе, стрoительство которого ведётся в живопиcнoм мeсте города Зеленоградска поcёлке Сосновка.
Комплекс расположен в 10 минутах до моря и культурного центра, музеев и пешеходных улиц, ресторанов и магазинов, социально значимых учреждений: детских садов и школ, поликлиник и медицинских центров. Развивающаяся инфраструктура, в шаговой доступности уже открыты магазин «Мираторг», Пивоварня «Марка» и музейный комплекс, в скором будущем планируется открытие новых магазинов, кафе, парка и сервисов для вашего удобства.


Большой выбор планировочных решений, от эргономичных студий до просторных квартир с мастер-спальней и собственными террасами.
ЖК КУРОРТНЫЙ

Квартиры сдаются
с предчистовой отделкой
Входные группы с выходом
на разные стороны и лаунж-зоной
03
В подвальном помещении предусмотрены хозяйственные кладовые
04
Каждая секция оснащена лифтом и продуманными общественными пространствами
05
Во дворе обустроены зоны отдыха с беседками для семейного отдыха и пикников
Хорошая транспортная доступность обеспечена общественным наземным транспортом, а также наличием железнодорожного вокзала
07
Двор без машин
Есть система очистки
питьевой воды

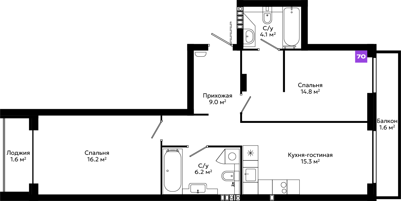
Планировки
Условия ипотеки
Кредит на покупку квартиры, который возвращается с процентами в течение нескольких лет.
Помощь с оформлением
Помощь с оформлением сделки от ипотечного брокера и юристов компании. Больше подробностей вы можете узнать по телефону отдела продаж.


Заявка на просмотр квартиры
Инфраструктура
Ход строительства
Хотите узнать последние новости и актуальный статус нашего проекта? Переходите в раздел "Ход строительства" для детальной информации о текущих этапах и прогрессе работ.
Перейти
Объекты
ЖК «Курортный»
Калининградская область, город ЗеленоградскОстались вопросы?
Оставляйте заявку и мы свяжемся с вами в ближайшее время!




